日射熱負荷(南面開口部にAirを貼り付けた場合)
| 8mm単板ガラス | 8mm単板ガラス+Air | |
| 透過 | 21.8 (GJ) | 12.2 (GJ) |
| 吸収 | 2.0(GJ) | 1.7 (GJ) |
| 合計 | 23.8 (GJ) | 13.9 (GJ) |
※空気調和・衛生工学会 空調システムエネルギーシミュレーションツールの標準評価法開発に関する研究の報告書モデル建物 (オフィスモデル) を対象とするシミュレーション結果
熱負荷計算プログラムLESCOMによるシミュレーションの結果、
南面開口部にて年間40%以上の日射熱負荷削減が確認されました。
各設定条件

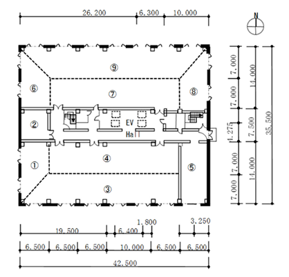
図-1 オフィス基準階、 平面図

図-2 オフィス基準階、断面図


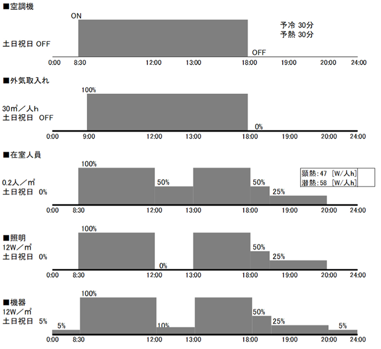
図-3 空調、 内部発熱 (在室人員、 照明、 機器) スケジュール (平日)
冷暖房設定条件
冷房設定温度、湿度: 昼間26℃、 50%、 予冷30分、 暖房設定温度、湿度 昼間22℃ 50%、 予熱30分とする。 冷暖房設定条件および内部発熱条件を図3に示す。 なお、予冷、予熱中は外気取入れは行わないものとする。
